پروژه مسکونی میان ، در یکی از محورهای مواصلاتی شهر مشهد، بزرگراه کلانتری واقع شده است. پروژه در تلاش بوده تا با نگاهی دیگر به مسکن شهری، از کلیشه های رایج فاصله بگیرد و ساختاری متفاوت را در قالب یک ساختمان ۹ واحدی ارائه دهد.

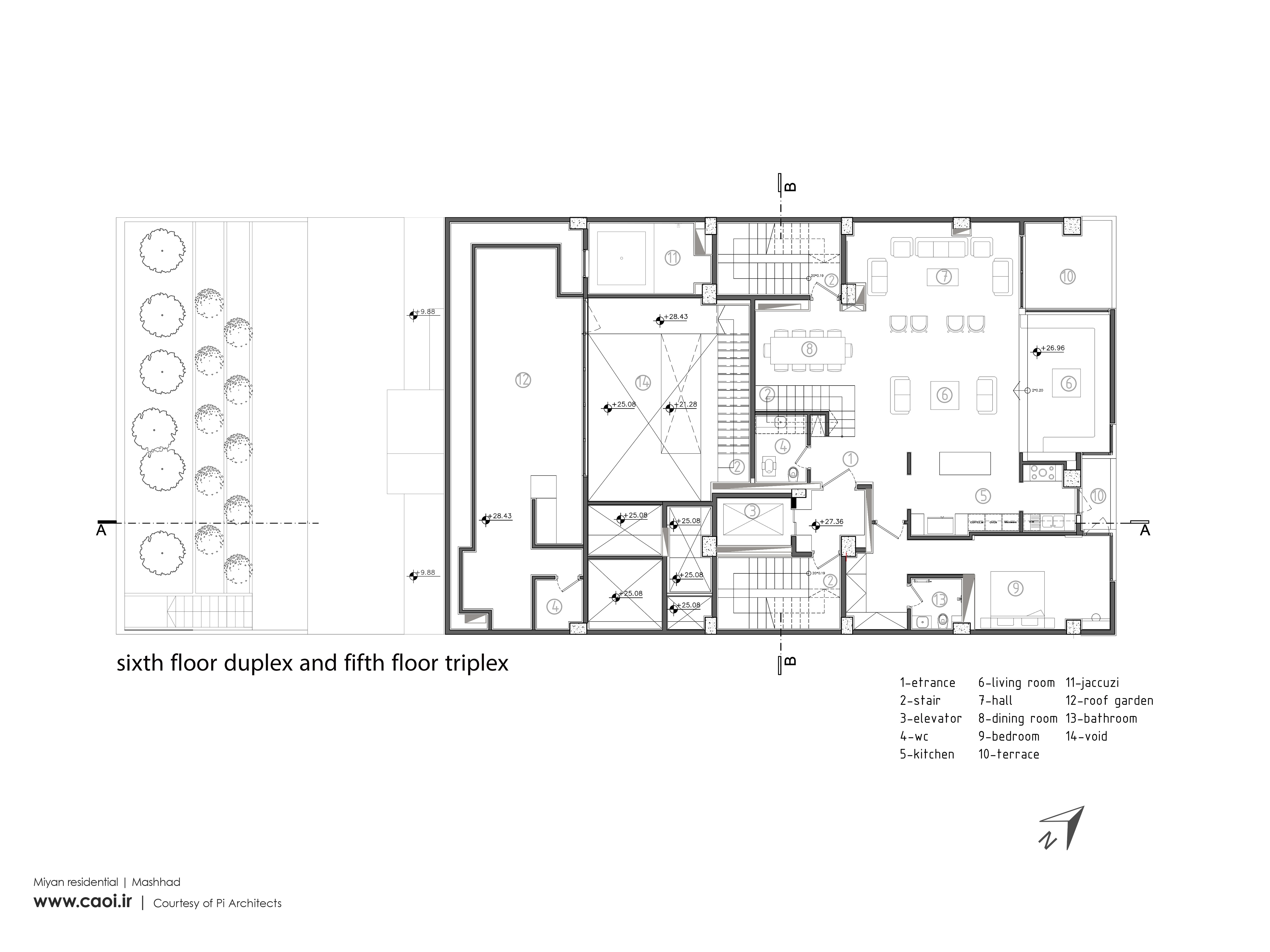
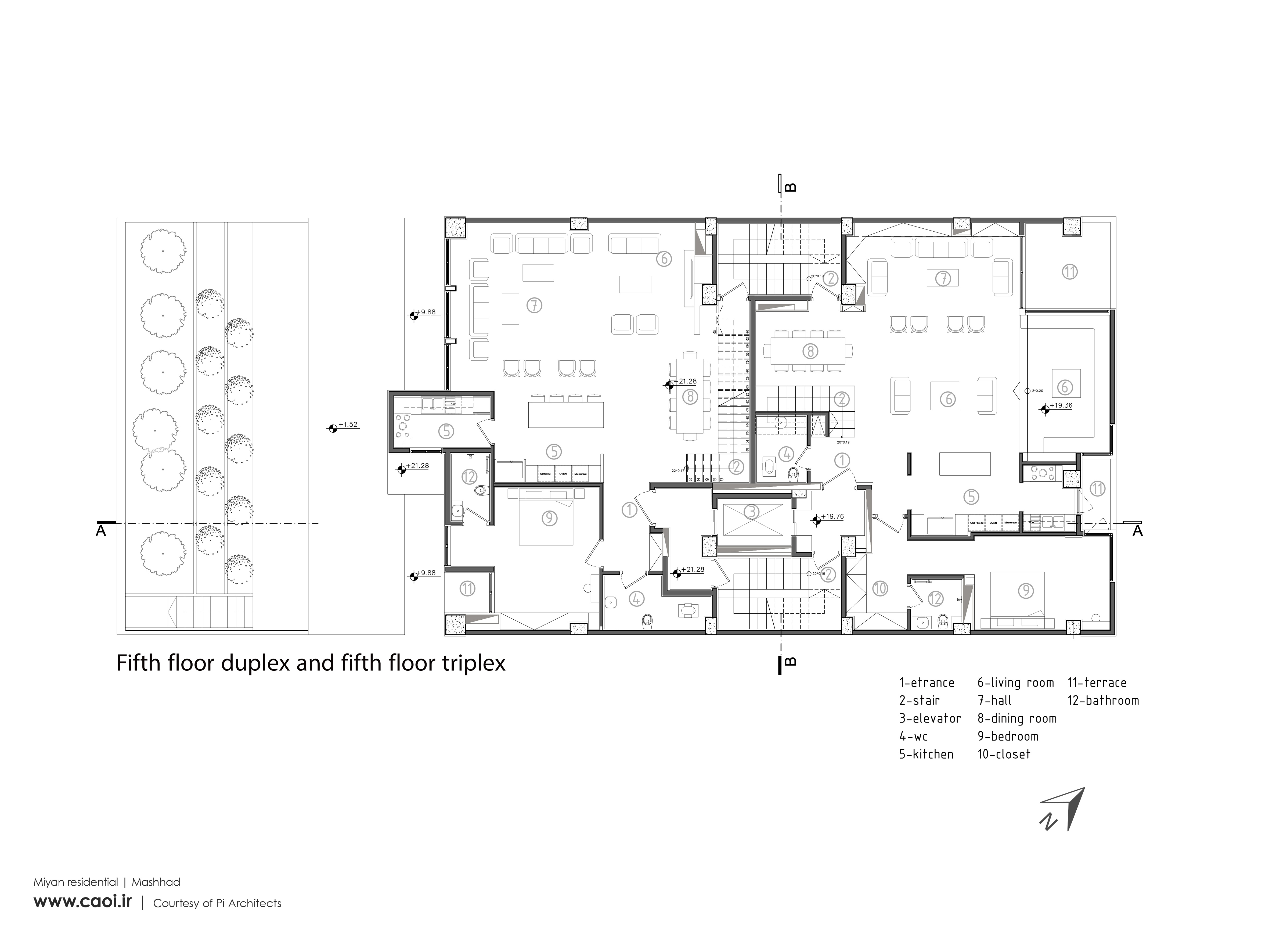
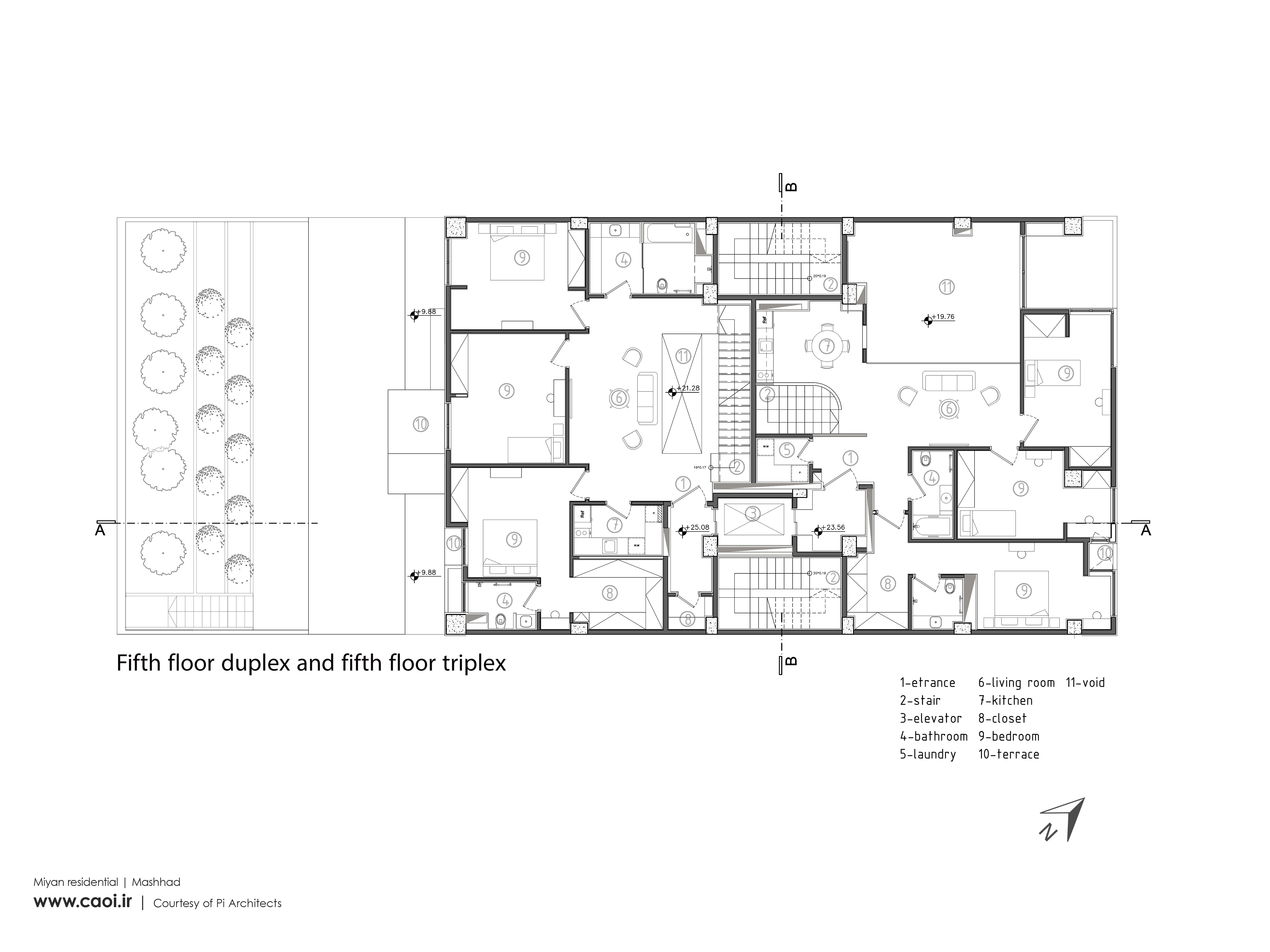
بنا از پنج تیپ پلانی متمایز تشکیل شده که هر کدام کیفیت فضایی خاص خود را دارند. این تنوع پلان، در عین حفظ انسجام کلی پروژه، به کاربران امکان انتخاب از میان گزینه هایی با سازمان فضایی متفاوت را میدهد؛ انتخابی که فراتر از صرفاً متراژ، بر پایه تجربه فضایی و زیست فردی شکل می گیرد. یکی از ویژگی های شاخص این پروژه، ایجاد شکست در فرم، حجم و سازهی ساختمان از میانه آن است. این تصمیم در طراحی نه تنها به تعریف بهتر فضاهای داخلی کمک کرده، بلکه باعث شکل گیری واحدهایی با یک میان طبقه (دوبلکس) در دو واحد و یا دو میان طبقه (تریبلکس) در یک واحد و در سه واحد دیگر با ساختاری شکسته شده است.

در این پروژه تراس هایی با نگاه کاربردی نسبت به نیازهای مخاطب در ضلع جنوب ساختمان طراحی شده که به عمق فضا کشیده شده اند. این تراس ها به دو دلیل، با نگاه ویژهای در طراحی به عنوان یکی از ملزومات مهم در نظر گرفته شده اند: یکی قرار گرفتن تراس ها در عمق و کارایی بهتر آنها در نتیجه ی حفظ فضاهای خصوصی، و دیگری ایجاد دید افقی در راستای شمال به جنوب، از فضای سبز تراس و دید به کوه های جنوب به فضای سبز باغ ملک آباد مشهد که در شمال پروژه قرار گرفته است.

توجه به حضور تراس به عنوان فضای نیمه باز، پاسخی است به نیاز روزافزون کاربران معاصر به اتصال با فضای باز، تهویه طبیعی، و ایجاد فرصت هایی برای تجربه زیست پذیرتر در دل ساختارهای متراکم شهری. این شکست در حجم و فرم همچنین موجب تفکیک مؤثر فضاهای عمومی و خصوصی در ساختمان شده است. این تفکیک فضایی به ساکنان این امکان را می دهد که در بخش خصوصی واحد خود زندگی کنند و تنها در مواقع خاص و در صورت نیاز به پذیرایی از مهمانان، از فضاهای عمومی استفاده نمایند. این طراحی نه تنها به حفظ حریم خصوصی و آسایش ساکنین کمک میکند، بلکه به طور قابل ملاحظهای مصرف انرژی را کاهش داده و از هدر رفت انرژی در فضاهای غیرضروری جلوگیری میکند.

توجه به بعد سوم نما باعث شکل گیری مرز جداکننده بین واحدهای دوبلکس و تریبلکس و همچنین این دو واحد با سایر واحدها شده است. این تفکیک به صورت سه بعدی در بعد سوم نمایان شده و حجم را از سطوح تخت جدا کرده است. ورودی ساختمان با دو گودال باغچه طراحی شده است که از طریق یک پله معلق به لابی متصل میشود، به طوری که ضمن تعریف فضایی مستقل برای ورود، ارتباط بصری با بیرون نیز حفظ گردد.
دباگرام روند طراحی طبقات آپارتمان مسکونی میان:

فضای داخلی  آپارتمان مسکونی میان:

 

 

فضای داخلی  آپارتمان مسکونی میان:

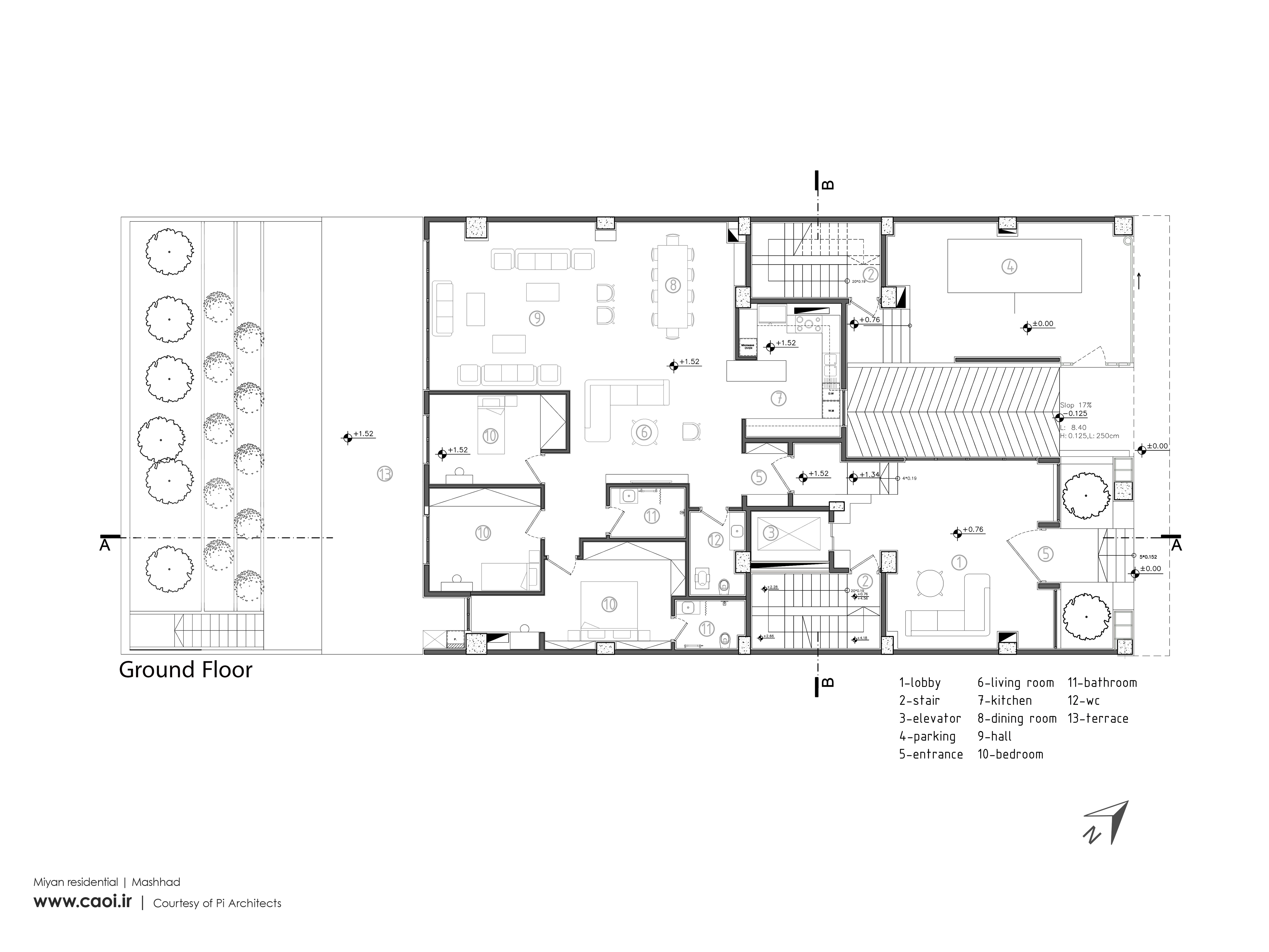
پلان های طبقات آپارتمان مسکونی میان:

800